Продам житловий автономний будинок під Києвом Дударків Бориспільський р-н

Фото Продаю дом, 217 кв. м, Борисполь, цена: 197000 $, код 4556
Борисполь
Борисполь
197 000 $
5 комнат
217 м2
2 Этажей
22 Соток

Продається капітальний житловий будинок в охайному, доглянутому стані: заходь - живи. Рік побудови - 2014.

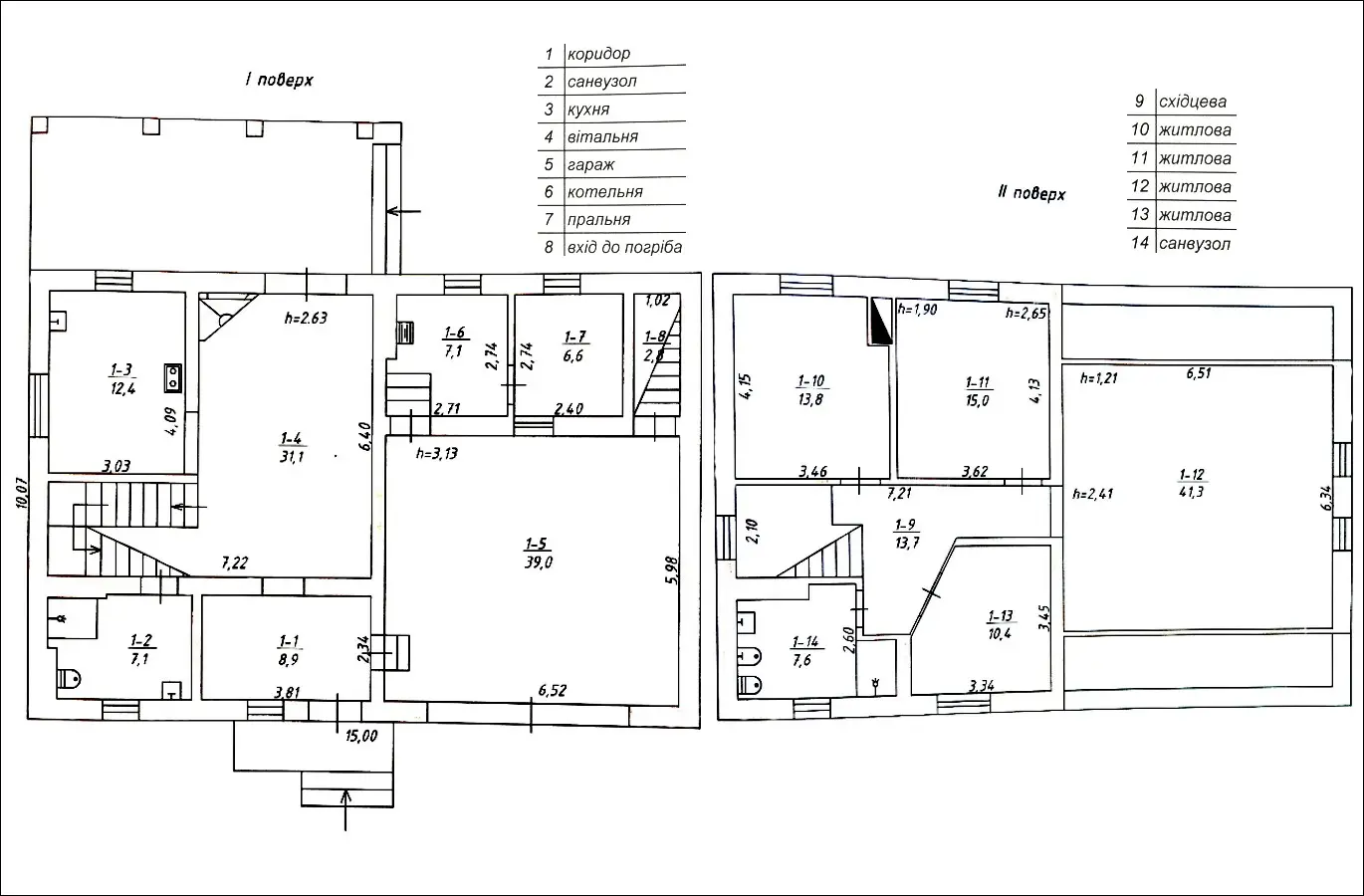
Розташування: Київська область, Бориспільський район, село Дударків (район зрубів). Відстань від воріт до ст. метро "Бориспільська" - 22 км, до ст. метро "Лісова" - 26 км. Під'їзд асфальтований. Загальна площа 216,8 кв.м., житлова - 111,6 кв.м., кухня - 12,4 кв.м., відкрита тераса 22 кв.м. В будинку чотири житлові кімнати (спальні), вітальня, два с/вузли з душовими кабінами, котельна, пральна, підвал, гараж на два авто (автоматичні ворота), погріб.

Трифазне електропостачання з окремими стабілізаторами (на кожну фазу). Встановлено бензиновий генератор потужністю 6,5 кВт з автоматичним вмиканням у разі зникнення напруги в мережі. Газовий (з джерелом безперебійного живлення) та електричний опалювальні котли, бойлер для підігріву води. Водопостачання - особиста свердловина глибиною 60 метрів з фільтраційною системою очищення води. Чотири накопичувальні ємності (септики): для фекальної води (з вентиляцією) та відведення дощової (талої) води. Відеонагляд, домофон, сигналізація, провідний Інтернет.

Площа земельної ділянки 22 сотки. Цільове призначення: будівництво та обслуговування житлового будинку. На території: літня кухня з барбекю, господарче приміщення, погріб, теплиця з полікарбонату, літній душ з вбиральнею, вольєр площею 13 кв.м., садок, газон з автоматичним поливом, город площею 7 соток. У садку: яблуні літніх та осінніх сортів, сливи, персики, вишні, черешня, айва, груша, смородина, виноград. По периметру ділянки паркан з профільного листа (фасадна частина на фундаменті з каменю). Автоматичні розсувні ворота.

Будинок не перепродавався. Первісний документ - Свідоцтво про право власності. Поштова адреса, реєстрація місця проживання.

Продаж за ціною власника, без комісійних посереднику.

22 апр. 2026 г.
22 апр. 2026 г. ID: 4556
20

Местонахождение