Продаж недобудови | 72 квартири | 2 950 м² | м. Олександрія

Фото Продаю дом, 2950 кв. м, Григория Усика ул. (Красноармейская)  Александрия, цена: 180000 $, код 3622
Григория Усика ул. (Красноармейская) Александрия
Александрия
180 000 $
2950 м2
9 Этажей
Соток

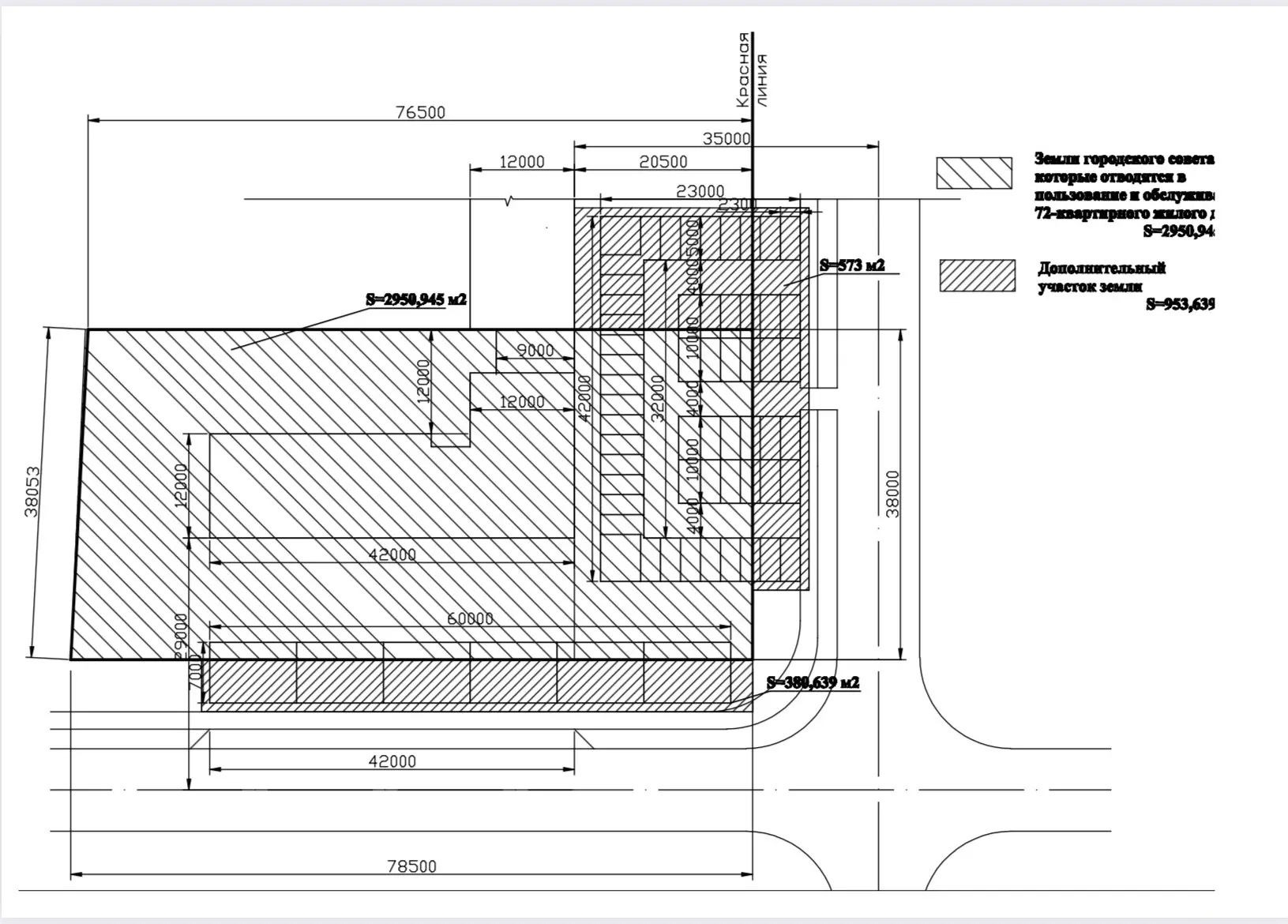
Продається об’єкт незавершеного будівництва – житловий багатоквартирний будинок на 72 квартири, загальна площа 2 950 м². Адреса обʼєкту: вул. Григорія Усика 53 (Червоноармійська 53)

Розташування: м. Олександрія, Кіровоградська область – центральна Україна, перспективне місто з зручним логістичним сполученням.

 

Цільове призначення – житлова забудова.

Додатково: земельна ділянка 953 м² під облаштування парковки.

 

Підходить для завершення будівництва та подальшого продажу квартир або формування житлового орендного фонду.

Вигідна пропозиція для інвестора чи девелопера.

16 дек. 2025 г.
16 дек. 2025 г. ID: 3622
309

Местонахождение