Скибин (7км Бровари). Продам котедж 300кв.м під оздоблення, 15сот Без%

Фото Продаю дом, 300 кв. м, Полевая ул.  Скибин, цена: 75000 $, код 3617
Полевая ул. Скибин
Скибин
75 000 $
5 комнат
300 м2
2 Этажей
15 Соток

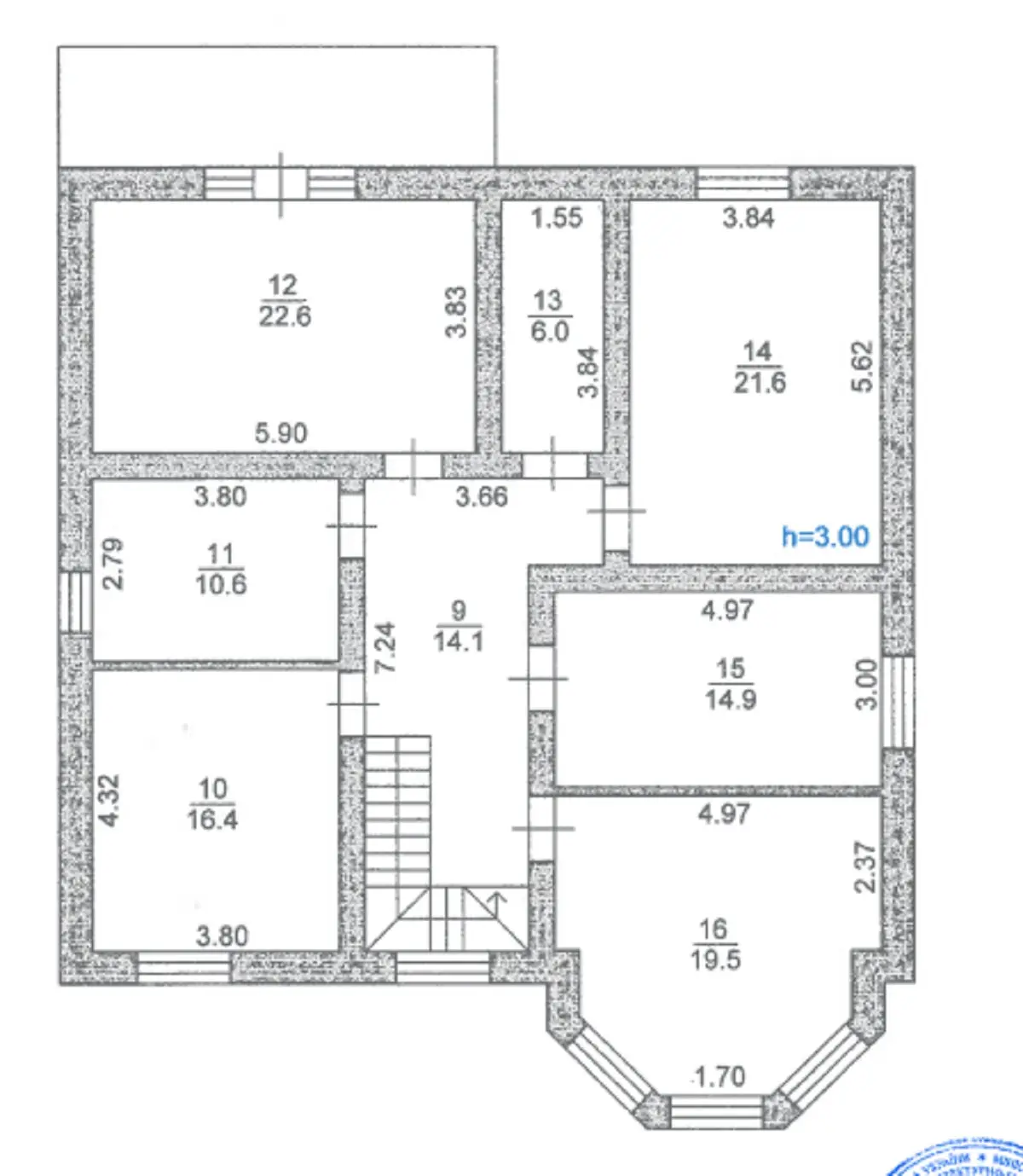
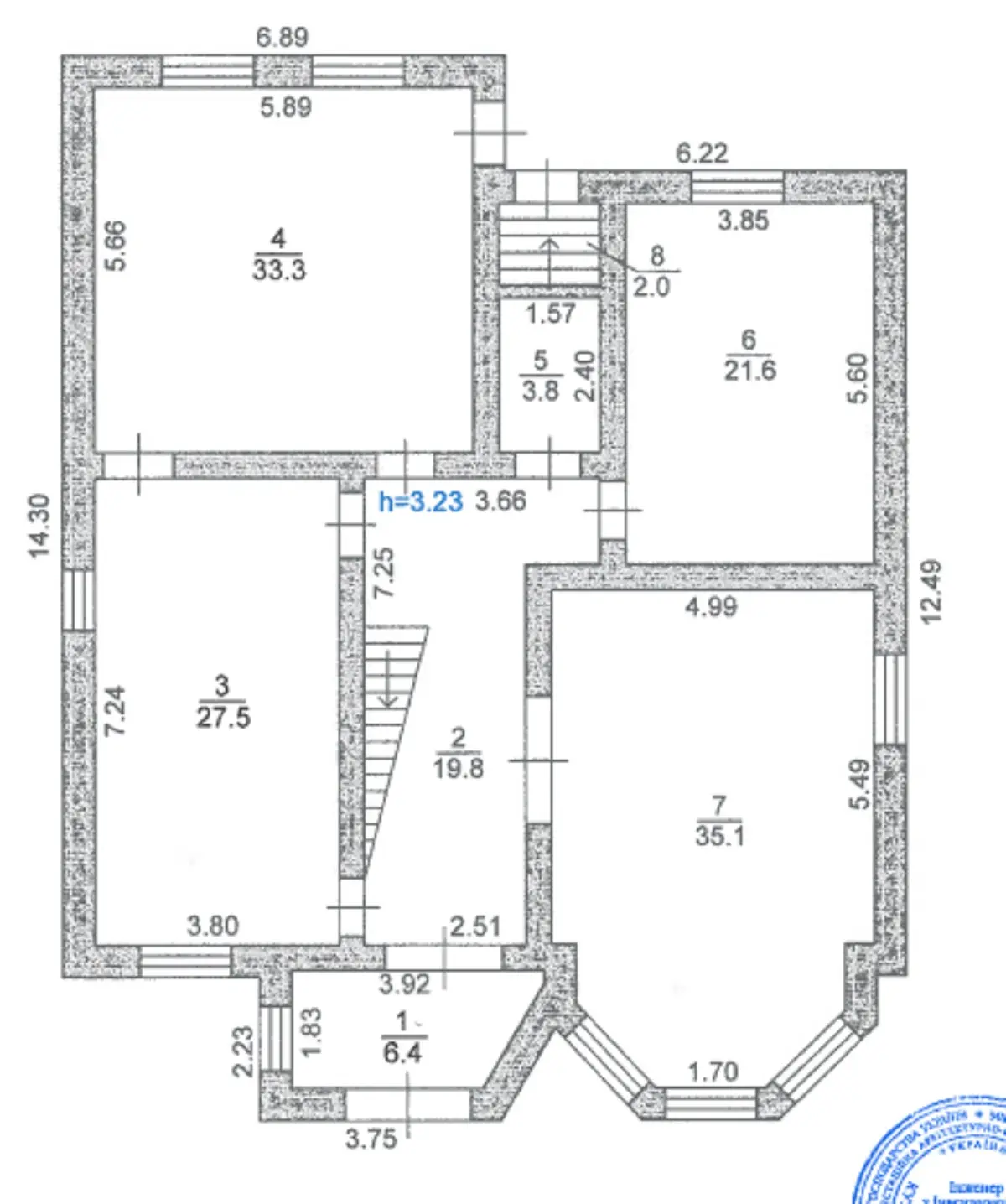
Броварський р-н. с. Скибин (лише в 7км від м. Бровари). Продається будинок двоповерховий площею 300кв.м, стан під оздоблення, велика вітальня 35кв.м, 5 кімнат, 3 санвузли, є підвал 25кв.м який можна обладнати під сховище, ділянка 15сот, заведена електрика 3 фази 16кВт, асфальтований підїзд, вулиця забудована. Київ-17км. Ціна 75000 доларів США. Без комісійних!!!

15 дек. 2025 г.
24 февр. 2026 г. ID: 3617
321

Местонахождение