Продаж магазину, вул. Миколи Світальського, 15

Фото Продаю коммерческую недвижимость, 814 кв. м, Николая Свитальского ул. (Коротченко) 15 Кривой Рог, цена: 175000 $, код 4342
Николая Свитальского ул. (Коротченко) 15 Кривой Рог
Покровский р-н Кривой Рог
175 000 $
814 м2

Продаж продуктового магазину
- Покровський район
- вул.Миколи Світальського
- зупинка "Молодіжна"
- "червона лінія"

Технічні характеристики:
- перший поверх 9-ти поверхового житлового будинку
- центральний та завантажувальний входи
- приміщення в робочому станні
- велика фасадна площа
- збоку місце для парковки

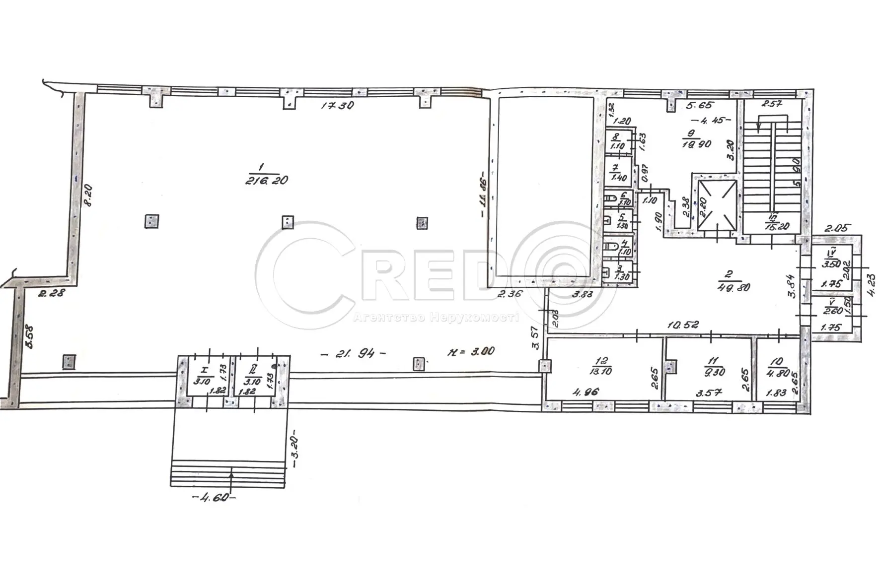
Планування об’єкту:
- загальна площа - 814кв.м
- перший поверх - 333кв.м
- підвальне приіщення - 480кв.м

Комунікації:
- опалення центральне відрізане
- центральне електропостачання 30кВт; 380Вт
- центральне водопостачання, каналізація
- пожежна, охорона сигналізації
- кондиціонер

Логістична розв’язка:
- приміщення розташоване в великому спальному районі
- поруч зупинки громадського транспорту
- супермаркет "АТБ", "Варус", аптеки та безліч інших магазинів
- великий автомобільний та пішохідний трафік

В магазині діючі орендарі, це отримання доходу з першого дня володіння.
Продаж 175 000у.о.

За будь-якими питаннями за цією або іншими пропозиціями звертайтесь за номером телефону 067 696 16 51.
З повагою, команда Credo!

23 мар. 2026 г.
23 мар. 2026 г. ID: 4342
150

Местонахождение

  1. 15