1к ЖК Виа Рома / Инглези. Евроремонт. Переуступка.

Фото Продаю 1-комнатную квартиру, 38 кв. м, Инглези ул.  Одесса, цена: 52000 $, код 3232
Инглези ул. Одесса
Таирова Киевский р-н Одесса
52 000 $
1 комната
38 м2
10 этаж

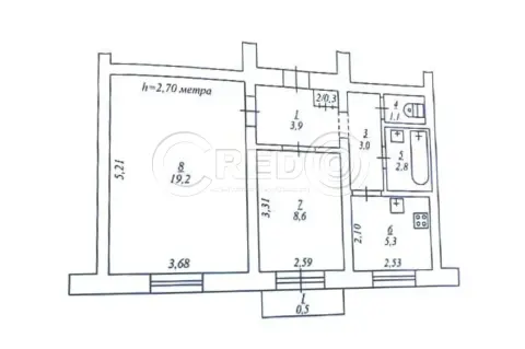
Переуступка 1К ЖК Виа Рома / Инглезы. 10-11 эт. Общая площадь 38 м. Кухня-гостиная 15 м. Спальня 9 м. 2 балкона. Сан узел совмещен. Современный качественный ремонт. 

11 нояб. 2025 г.
5 янв. 2026 г. ID: 3232
452

Местонахождение

Смотрите также недвижимость в других микрорайонах:
Аркадия Большой Фонтан Бугаёвка Дача Ковалевского Дерибасовка Ланжерон Малый Фонтан Слободка-Воронцовка Средний Фонтан Таирова Центр Черноморка