Инглези: продам красивую квартиру в доме 1996 г. напротив Сити Центра!

Фото Продаю 3-комнатную квартиру, 65 кв. м, Инглези ул. 3/3 Одесса, цена: 58000 $, код 4391
Инглези ул. 3/3 Одесса
Таирова Киевский р-н Одесса
58 000 $
3 комнаты
65 м2
13 / 16 этаж

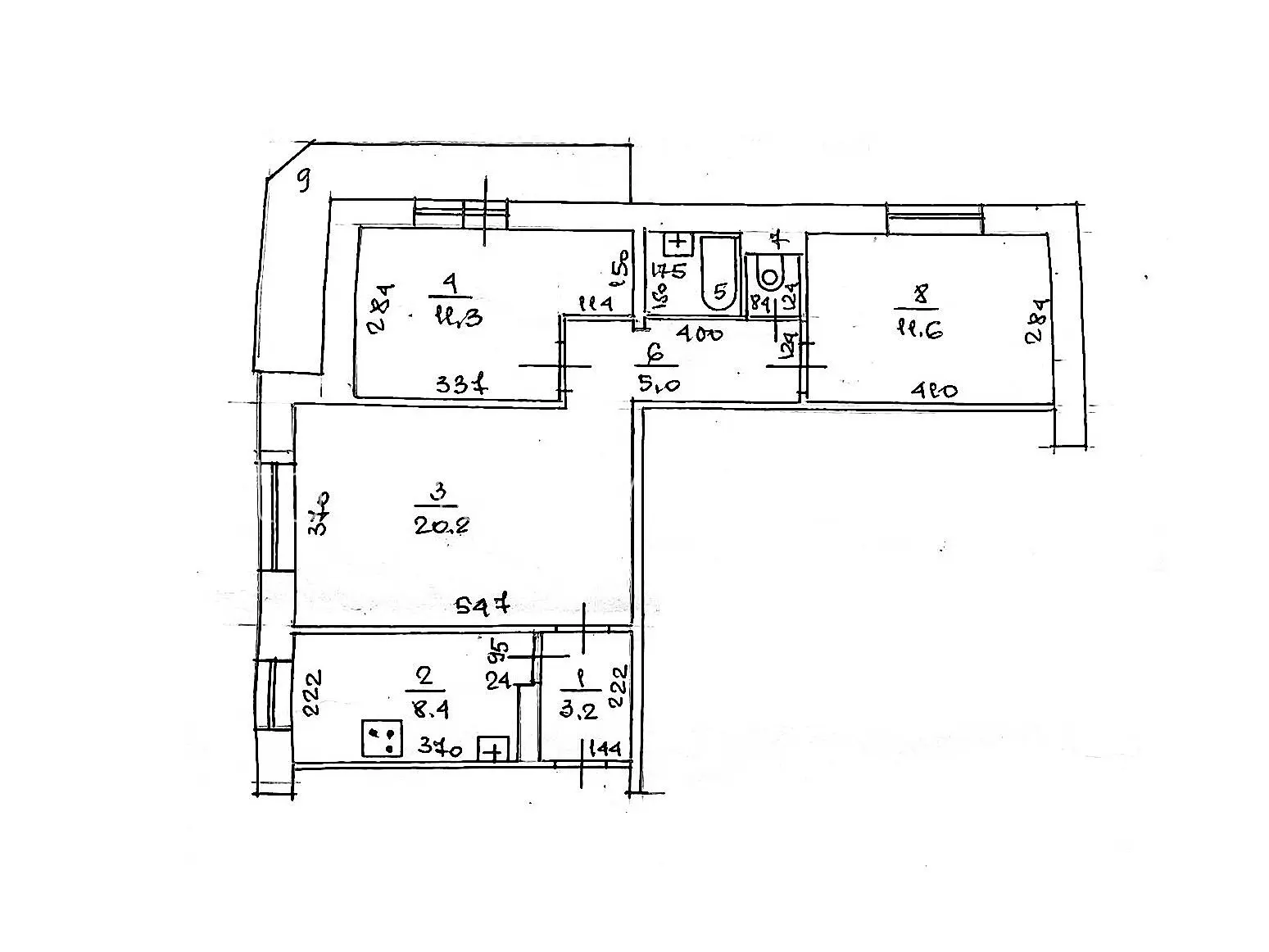
Небесной Сотни / Инглези, продам красивую квартиру, расположенную на 13 этаже теплого кирпичного 16-этажного дома 1996 года постройки,  65/45/8,5 кв.м, три комнаты, одна проходная гостиная 21 кв.м и две раздельные уютные спальни, удобная кухня, сан. узел раздельный с ванной, угловой балкой, хороший современный ремонт в светлых тонах, очень комфортная планировка, шикарный паркет, окна и двери – покрытое лаком натуральное дерево, полностью укомплектована мебелью и бытовой техникой, установлены бойлер и кондиционер,  просторная великолепная квартира в невероятно удобном районе в начале Таирова напротив ТРЦ «Сити Центр»!

28 мар. 2026 г.
17 апр. 2026 г. ID: 4391
191

Местонахождение

  1. 3/3
Смотрите также недвижимость в других микрорайонах:
Аркадия Большой Фонтан Бугаёвка Дача Ковалевского Дерибасовка Ланжерон Малый Фонтан Слободка-Воронцовка Средний Фонтан Таирова Центр Черноморка