Продаж нежитлового приміщення. "Червона"

Фото Selling an office, 43 sq.m., Kryvorizhstali Street (Ordzhonikidze Street) 9 Kryvyi Rih, price: 14000 $, code 4343
Kryvorizhstali Street (Ordzhonikidze Street) 9 Kryvyi Rih
Metalurhiinyi Kryvyi Rih
14 000 $
43 м2

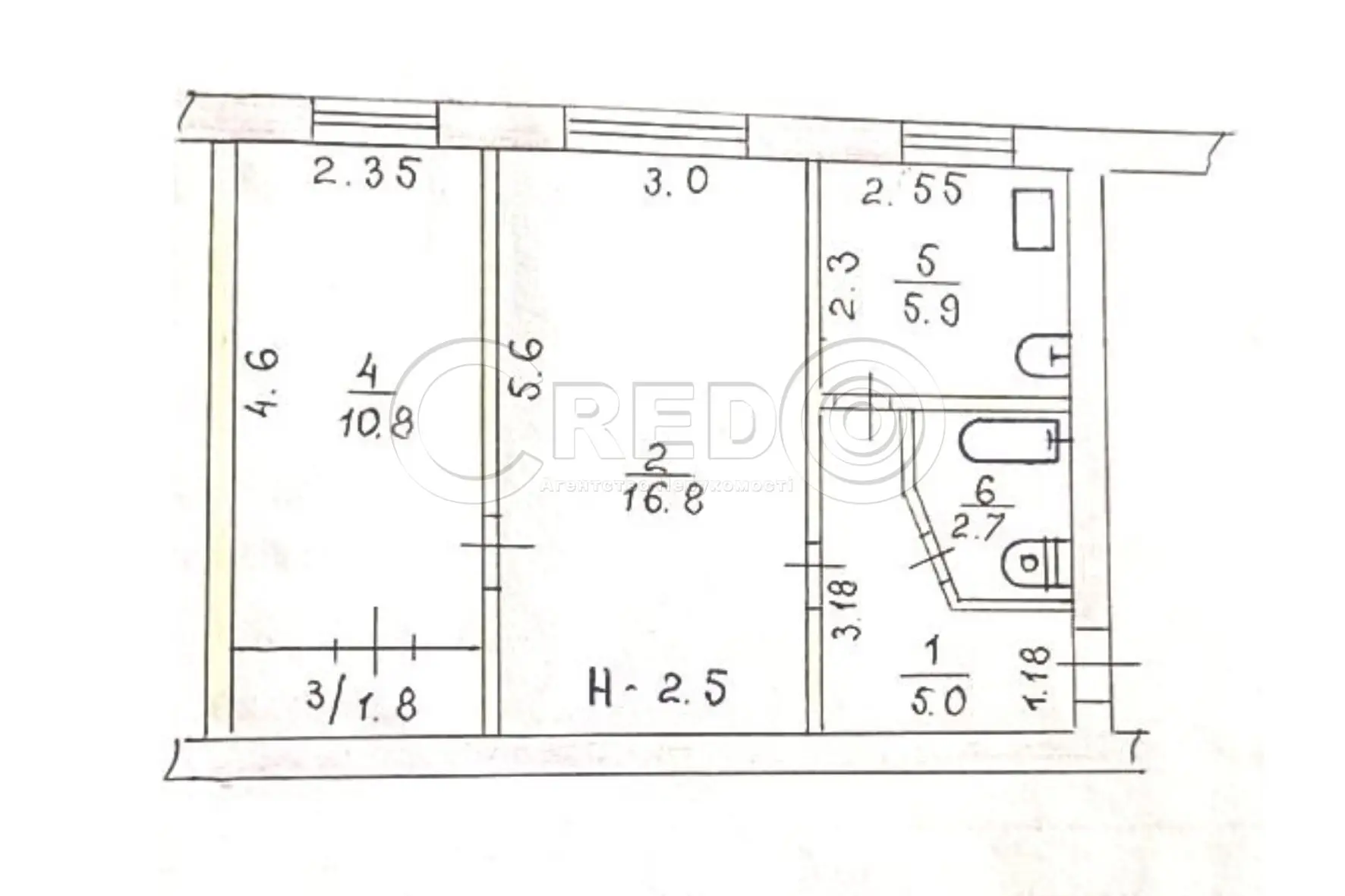
Пропонується до продажу вбудоване нежитлове приміщення
(склад) в районі вокзалу "Червона" по вулиці Криворіжсталі,9.

Будинок в самому центрі мікрорайону "Червона", Металургійний
район. Поряд транспортна розв'язка вокзалу, завод.

Перший поверх будівлі зайнятий виключно комерційними
об'єктами. Є можливість придбання сусіднього приміщення
для збільшеня площі (офісне приміщення).

Про об'єкт:
- 1 поверх 5типоверхового будинку.
- загальна площа 43 м.кв.
- приміщення 16.8 + 10.8 + 5.9 м.кв.
- зараз обаднаний і використовується як склад.
- вхід з під'їзду.
- всі приміщення виходять у двір.
- вікна захищенні металічними ставнями.

Ціна продажу 14 000$.
Розглянемо ваші пропозиції.

За будь-якими питаннями за цією або схожими пропозиціями звертайтесь за номером телефону, де вам відповість наш ріелтор 067 982 17 19.
З повагою, команда АН Credo

Mar 23, 2026
Mar 23, 2026 ID: 4343
170

Location

  1. 9