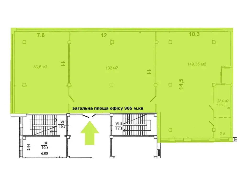
Без комісії. Оренда приміщення 365 м.кв. під офіс, майстерню. Почайна

Фото Rent an office, Novokostiantynivska Street 18 Kyiv for long-term rent, price: 50000 UAH, code 2871
Novokostiantynivska Street 18 Kyiv
Obolonskyi Kyiv
50 000 UAH
365 м2
Pochayna — 14 хв

Без комісії для орендаря. Оренда приміщення під склад, офіс, майстерню, фотостудію, спортивні заклади.
- Київ, Оболонський р-н, Новокостянтинівська 18, орієнтир Метро Т. Шевченка, Почайна.
- Приміщення розташоване на 2-му поверсі, ліфту немає;
- Загальна площа блока 365 м. кв.
- Планування: вільне, санвузол на поверсі;
- Крок колон 5,6 м., Н-2,9 м.
- Є технічна можливість зробити власний санвузол
- Без ремонту, надаються ремонтні канікули
- Електрика без відключень, потужність 50 кВт.
- Паркування гостьове.
- В будівлі є кафе-їдальня, безпечне сховище.
- Поряд зупинки транспорту, швидкий доступ до метро Почайна, Т. Шевченка
- Оренда вказана з ПДВ. Додатково комунальні платежі.

Oct 9, 2025
Dec 5, 2025 ID: 2871
318

Location

  1. 18
Also check out properties in other neighborhoods:
Bereznyaky Bilychi Centr Demiivka DVRZ Holosiiv Kharkivskyi-masyv Livoberezhnyi-masyv Lukyanivka Lypky Myshalivka Nova-Zabudova Nyzhniy-Pechersk Obolon Oleksandrivska-Slobidka Osokorky Pechersk Podil Poznyaky Shulyavka Solomianka Syrets
Rent offices in Kyiv near a metro stations:
Arsenalna Beresteiska Boryspilska Darnytsya Demiivska Dorohozhychi Golden-Gate Holosiivska Kharkivska Khreschatyk Klovska Kontraktova-Square Livoberezhna Lukianivska Lybidska Maidan-Nezalezhnosti Minska Olimpiiska Osokorky Palace-of-Sports Palats-Ukrayina Pecherska Ploshcha-Ukrainskyx-Heroiv Pochayna Poshtova-Ploshcha Pozniaky Shuliavska Slavutych Tarasa-Shevchenka Teatralna Universytet Vokzalna Zvirynecka