1к Посейдон/Золотой Берег. Переуступка.

Фото Selling a 1-room apartment, 42 sq.m., Dacha Kovalevskoho Street  Odesa, price: 46000 $, code 3093
Dacha Kovalevskoho Street Odesa
Dacha-Kovalevskoho Kyivskyi Odesa
46 000 $
1 room
42 м2
20 / 26 floor

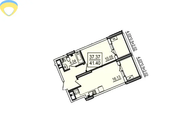
 Переуступка     1к Посейдон/ Дача Ковалевского.  20/26 эт. Общая площадь 42 м. Комната 15 м, кухня 16 м. Сан узел совмещен. Лоджии. Состояние от строителей. Вид на зеленую зону, южная сторона. 

Oct 28, 2025
Dec 17, 2025 ID: 3093
584

Location

Also check out properties in other neighborhoods:
Arcadia Buhayivka Centre Chornomorka Dacha-Kovalevskoho Deribasivka Lanzheron Malyi-Fontan Serednii-Fontan Slobidka-Vorontsovka Tairova Velyky-fontan