Без %! Видовий пентхаус 123м Док 32 Електриків Рибальський острів!

Фото Продаю 4-комнатную квартиру, 123 кв. м, Набережно-Рыбальская дорога  Киев, цена: 210000 $, код 3724
Набережно-Рыбальская дорога Киев
Подол Подольский р-н Киев
210 000 $
4 комнаты
123 м2
25 / 26 этаж
Почтовая площадь — 11 хв

Без %! Видовий пентхаус 123м Док 32 Електриків Рибальський острів!  

 

Оболонський р-он, Набережно – Рибальська дорога, 27 ( Електриків ) Рибальський острів

 

Видовий пентхаус на Дніпро!

Новий проект від надійного і якісного забудовника Ковальська біля Дніпра на Рибальському острові!

ЖК Dock 32 комфорт класу.

Будинок введено в експлуатацію!

 

Секція 1.

Панорамне скління.

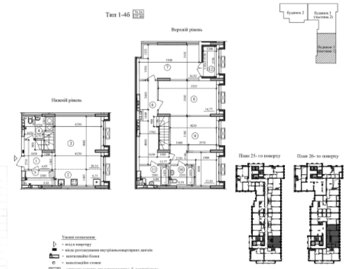
2 рівнева квартира

25 - 26 /26

Площа 123,3  / 76,2 / 6,3 кв.м. Одностороння.

У квартирі простора кухня, 4 окремі кімнати, 3 с/в, комора, лоджія.

 

Стан: Після забудовників.

Комунікації: всі міські комунікації, авт..опалення в будинку.

Стильне лобі, зона відпочинку, дитячий майданчик.

Підземний паркінг. Гостьова парковка.

Територія під охороною. Відеонагляд.

 

Поруч ТРЦ Блокбастер, Епіцентр, вся інфраструктура.

2,8 км м. Почайна..

 

Право власності отримано

Додатково оплачується 2%.

 

Ціна 210 000 у.е. Без комісії!

5 янв. 2026 г.
25 мар. 2026 г. ID: 3724
291

Местонахождение

Смотрите также недвижимость в других микрорайонах:
Академгородок Александровская слободка Багринова гора Беличи Березняки Бортничи Борщаговка Быковня Виноградарь Віта-Литовська Воскресенка Голосеево Дарница Демиевка Караваевы Дачи Куренёвка Левобережный массив Лесной массив Липки Лукьяновка Минский массив Мышеловка Нивки Нижний Печерск Новая Застройка Новобеличи Оболонь Осокорки Отрадный Печерск Пирогов Подол Позняки Приорка Пуща-Водица Русановка Соломенка Соцгород Сырец Теремки Троещина Феофания Харьковский массив Центр Чоколовка Шулявка
Продажа квартир в Киеве возле метро:
Академгородок Берестейская Бориспольская Васильковская Вокзальная Выдубычи Вырлица Выставочный центр Героев Днепра Голосеевская Дарниця Дворец спорта Демеевская Дорогожичи Житомирская Зверинецкая Золотые ворота Ипподром Кловская Контрактовая площадь Лівобережна Лукьяновская Лыбедская Майдан Незалежности Минская Нивки Оболонь Олимпийская Осокорки Палац «Україна» Печерская Пл. Украинских Героев Позняки Политехнический институт Почайна Почтовая площадь Славутич Сырец Теремки Університет Харьковская Чернігівська Шулявская