Продаж 3-х кім. квартири вул. Соборності

Фото Продаю 3 кімнатну квартиру, 48 кв. м, Соборності вул. (Косіора)  Кривий Ріг, ціна: 11700 $, код 2986
Соборності вул. (Косіора) Кривий Ріг
Металургійний р-н Кривий Ріг
11 700 $
3 кімнати
48 м2
4 / 5 поверх

Продаж 3-х кім. квартири вул. Соборності

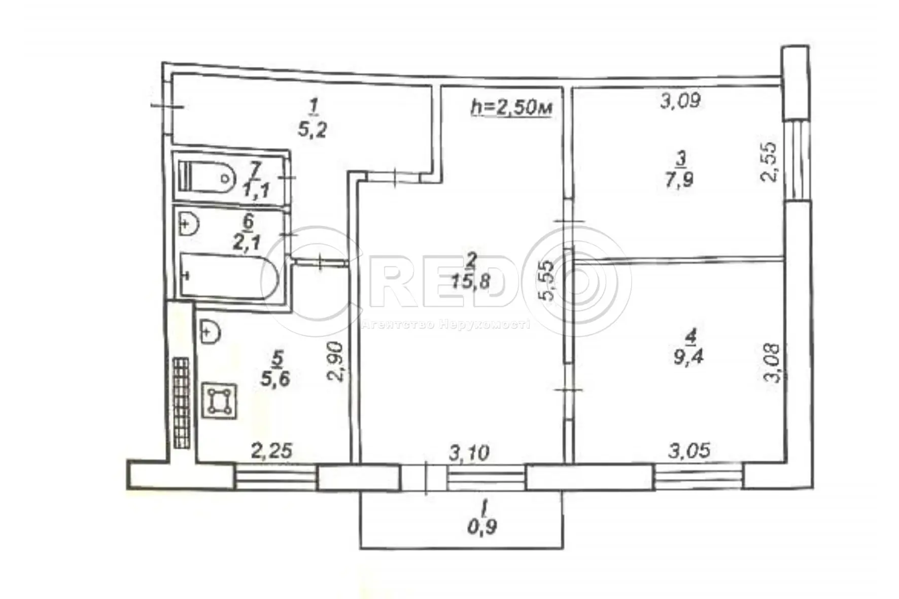
Про об’єкт:
- Квартира розташована на 4/5-ти поверхового будинку.
- Загальна площа 48 кв.м.
- Житлова 33,1кв.м.
- Кухня 5,6кв.м.
- Висота Н - 2.50м.

Планування об’єкту:
Квартира кутова, одна кімната прохідна, один балкон.

Особливості квартири:
Повністю поміняні вікна, замінені труби м/пл., бойлер, встановлені лічильники на світло, газ та воду.

Об'єкти поруч:
- Зручне місце розташування
- Великий жилий масив
- Школа, Дитячий садок
- Поряд магазини, аптеки, зупинка, та інше.

Ціна 11 700у.о.

За будь-якими питаннями за цією або схожими пропозиціями звертайтесь за номером телефону 068 862 43 57.
З повагою, команда Credo!

22 жовт. 2025 р.
24 лист. 2025 р. ID: 2986
168

Місцезнаходження