Довгострокова оренда комерційної нерухомості, Княжий Затон вул. 12 Київ

Фото Орендувати офіс, Княжий Затон вул. 12 Київ в довгострокову оренду, ціна: 37000 грн, код 4262
Княжий Затон вул. 12 Київ
Позняки Дарницький р-н Київ
37 000 грн
43 м2
Осокорки — 12 хв
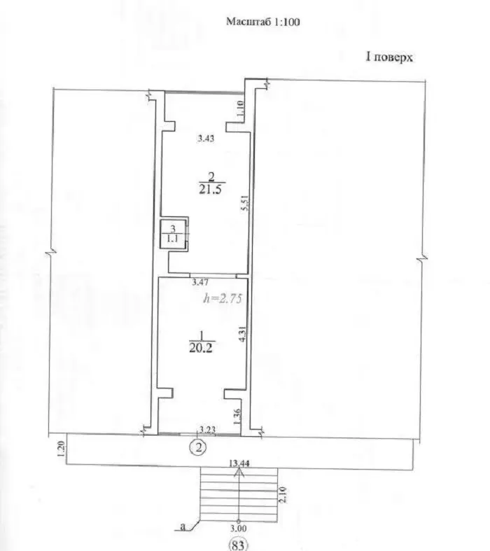
Здається торгівельне приміщення приміщення. Дарницький район. вулиця Княжий Затон. 12. метро ОсокоркиФасадне приміщення 42.8 м² — Княжий Затон. 12. Ідеальна локація! Планування для будь-якого вашого бізнесу! Панорамний вхід. активний трафік. поруч школа та зупинка.- Площа: 42.8 м²;- Висота стелі: 2.75 м;- Потужність електроенергії: 15 кВт;- Готовий ремонт;- Зручне планування — легко адаптувати під будь-який вид діяльності;- Є вода. каналізація. індивідуальні лічильники;- Укладені договори з усіма комунальними службами.Зроблений якісний ремонт. Приміщення повістю готове до експлуатації. Заходь і працюй!Переваги розташування:- Прямо біля Київської інженерної гімназії- Навколо численні житлові комплекси з висотними будинками.- Розташування - густонаселений район Позняки-Осокорки- Перед входом зупинка громадського транспорту.Ціна: 37000грн
17 бер. 2026 р.
18 трав. 2026 р. ID: 4262
154

Місцезнаходження

  1. 12
Дивіться також нерухомість у інших мікрорайонах:
Академмістечко Багринова гора Березняки Біличі Борщагівка Голосіїв ДВРЗ Деміївка Липки Лівобережний масив Лук’янівка Мишоловка Нивки Нижній Печерськ Нова Забудова Оболонь Олександрівська Слобідка Осокорки Печерськ Поділ Позняки Сирець Солом’янка Соцмісто Троєщина Харківський масив Центр Шулявка
Оренда офісів в Києві біля метро:
Арсенальна Берестейська Вокзальна Дарниця Деміївська Дорогожичі Житомирська Звіринецька Золоті ворота Кловська Контрактова площа Либідська Лівобережна Лук'янівська Майдан Незалежності Мінська Олімпійська Осокорки Палац спорту Палац «Україна» Печерська Пл. Українських Героїв Позняки Політехнічний інститут Почайна Поштова площа Святошин Славутич Тараса Шевченка Університет Харківська Хрещатик Шулявська