Продаж нежитлового приміщення пр.Університетський "97 Квартал"

Фото Продаю комерційну нерухомість, 129.4 кв. м, Гагаріна просп.  Кривий Ріг, ціна: 155000 $, код 3423
Гагаріна просп. Кривий Ріг
Саксаганський р-н Кривий Ріг
155 000 $
129.4 м2

Продаж нежитлового приміщення пр.Університетський «Червона лінія», «97 квартал».
Приміщення для ресторанної концепції з літнім майданчиком та власним парко-місцем для клієнтів.
Добре проглядається з проїзної частини, зручні під’їздні шляхи.
Розвинена іфраструктура, епіцентр ділової, торговельної та освітньої активності.

Технічні характеристики:
- Приміщення знаходиться в доброму стані.
- З обладнанням, меблями, технікою та предметами інтер’єру.
- Капітальний ремонт був виконаний в 2017р.
- Оновлені всі комунікаційні системи.
- Два входи.
- На підлозі кахель.
- Стіни під фарбування.

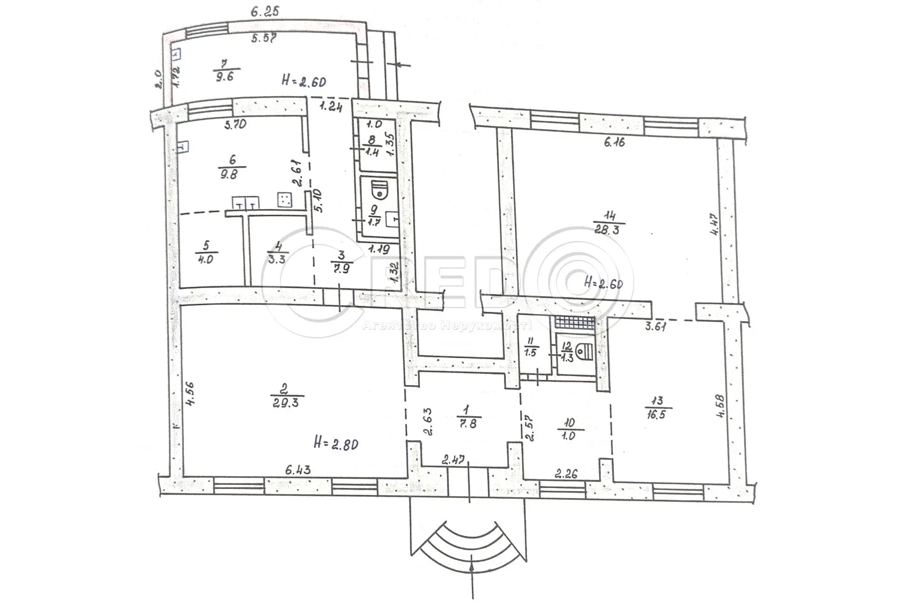
Планування об’єкту :
- Загальна площа – 129.4кв.м.
- Висота стелі – 2.80м.
- Три зали 29.3кв.м., 28.3кв.м.,16.5кв.м.
- Приміщення посадкових місць розраховано на 57 персон.
- Літній майданчик розрахований на 30 посадочних місць.

Комунікації:
- Електроенергії дві фази 380V та 220V, 50кВт.
- Центральне водопостачання та каналізація.
- Центральне опалення.
- Бойлер.
- Кондиціонери.

Локація:
- «Червона лінія»
- Сучасна транспортна лінія, яка з’єднує різні райони міста.
- Велика скупченість студентів та жителів.
- Поряд магазини, банки, салони, аптеки, кафе, ресторан.
- Великий автомобільний та пішохідний трафік.

Продаж – 155000$

За будь-якими питаннями за цією або схожими пропозиціями звертайтесь за номером телефону, де вам відповість наш ріелтор 098 985 09 08.

З повагою, команда АН Credo

1 груд. 2025 р.
25 груд. 2025 р. ID: 3423
223

Місцезнаходження