Продаж магазину вул. Гірничих інженерів,5 (Пушкіна)

Фото Продаю комерційну нерухомість, 62 кв. м, Пушкіна вул.  Кривий Ріг, ціна: 34000 $, код 2985
Пушкіна вул. Кривий Ріг
Центрально-Міський р-н Кривий Ріг
34 000 $
62 м2

Продаж магазину по вул. Гірничих інженерів (Пушкіна)

- Центрально-Міський район
- "червона лінія"
- приміщення в процесі ремонту

Про об’єкт:
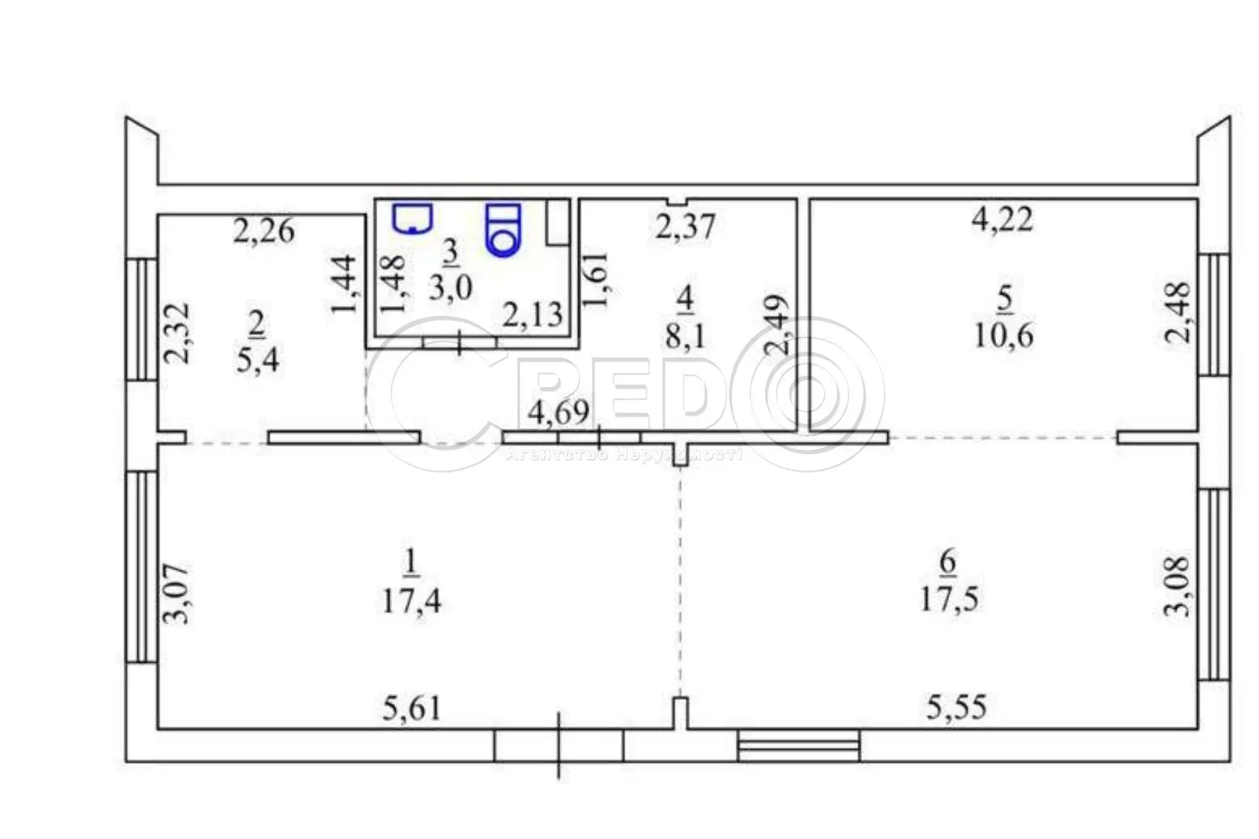
- загальна площа-62 кв.м
- торгівельна зала-34,9 кв.м
- висота потолків- 2.60 м
- центральний вхід
- перший поверх 5-ти поверхового будинку
- окремий вхід

Комунікації:
- центральне електропостачання 5 кВт; 220 Вт
- центральне водопостачання, каналізація
- центральне опалення
- кондиціонер
- пожежна, охоронна сигналізації

Логістична розв’язка:
- магазин розташований біля площі Визволення
- "червона лінія"
- безліч комерційних магазинів
- учбові заклади
- автомобільний та пішохідний трафік
- проїздна частина міста

Продаж 34 000у.е.

За будь-якими питаннями за цією або схожими пропозиціями звертайтесь за номером телефону 067 696 16 51.

22 жовт. 2025 р.
22 жовт. 2025 р. ID: 2985
299

Місцезнаходження