Продаж складського комплексу на "Смичці"

Фото Продаю склад, 3720 кв. м, Окружна вул.  Кривий Ріг, ціна: 80 $, код 4308
Окружна вул. Кривий Ріг
Центрально-Міський р-н Кривий Ріг
80 $

Продаж складського комплексу вул. Окружна "Смичка"
- м.Кривий Ріг
- Центрально Міський район
- вул.Окружна,3

Технічні характеристики:
- окремо разтошована капітальна будівля
- знаходиться на території складів
- склад в робочому стані
- офісні приміщення, с/вузол, роздягальня для персоналу
- котельня
- гараж
- рампа
- парковка біля складу

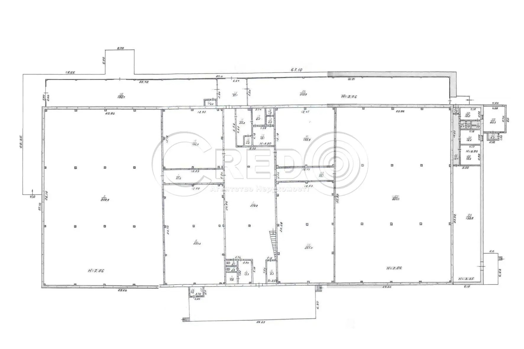
Планування об’єкту:
- загальна площа -3720 кв.м
- гараж-123 кв.м
- земельна ділянка-5886 кв.м

Комунікації:
- опалення - твердопаливний котел (опаленя офісних приміщень)
- центральне електропостачання 30кВт; 380 Вт
- центральне водопостачання, каналізація
- охоронна сигналізація
- кондиціонери в офісах

Логістична розв’язка:
- приміщення розташоване в промисловій зоні
- поруч зупинки громадського транспорту
- виїзд на Кіровоградську трасу
Продаж 80 у.о./кв.м

За будь-якими питаннями за цією або іншими пропозиціями звертайтесь за номером телефону 067 696 16 51.
З повагою, команда Credo!

19 бер. 2026 р.
19 бер. 2026 р. ID: 4308
183

Місцезнаходження