Продажа 2-комнатной квартиры 60 кв. м, Владимира Сосюры ул. 6 Киев

Фото Продаю 2-комнатную квартиру, 60 кв. м, Владимира Сосюры ул. 6 Киев, цена: 59000 $, код 4126
Владимира Сосюры ул. 6 Киев
Соцгород Днепровский р-н Киев
59 000 $
2 комнаты
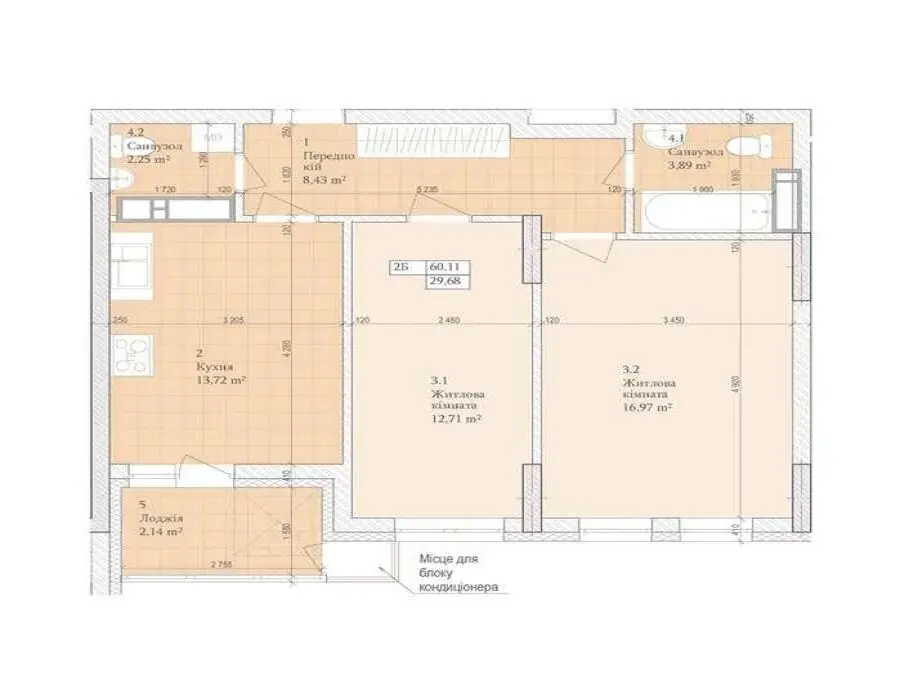
60 м2
14 / 25 этаж
Продаётся двухкомнатная квартира. Днепровский район. улица Сосюры Владимира. 6. метро Дарница. ЖК Днепровская мрия (строится)Пропонується до продажу простора 2-кімнатна квартира у новому будинку. який отримав сертифікат готовності та знаходиться на етапі створення ОСББ та введення в експлуатацію.Характеристики квартири:Розташована в 1-й секції14 поверх. вікна виходять у внутрішній двір комплексуУ під’їзді: 2 пасажирські ліфти + 1 вантажнийСтан: після будівельників — штукатурка стін. стяжка підлогиВстановлені лічильники: вода. електрика. опаленняБудинок має власну котельню — стабільне тепло та незалежністьПраво власності вже оформленоМожливий продаж за програмою єОселяЧудовий варіант для ремонту під власний дизайн або для інвестиції у новий. сучасний комплекс.Деталі та перегляд — за запитом!
5 мар. 2026 г.
25 мар. 2026 г. ID: 4126
103

Местонахождение

  1. 6
Смотрите также недвижимость в других микрорайонах:
Академгородок Александровская слободка Багринова гора Беличи Березняки Бортничи Борщаговка Быковня Виноградарь Віта-Литовська Воскресенка Голосеево Дарница Демиевка Караваевы Дачи Куренёвка Левобережный массив Лесной массив Липки Лукьяновка Минский массив Мышеловка Нивки Нижний Печерск Новая Застройка Новобеличи Оболонь Осокорки Отрадный Печерск Пирогов Подол Позняки Приорка Пуща-Водица Русановка Соломенка Соцгород Сырец Теремки Троещина Феофания Харьковский массив Центр Чоколовка Шулявка
Продажа квартир в Киеве возле метро:
Академгородок Берестейская Бориспольская Васильковская Вокзальная Выдубычи Вырлица Выставочный центр Героев Днепра Голосеевская Дарниця Дворец спорта Демеевская Дорогожичи Житомирская Зверинецкая Золотые ворота Ипподром Кловская Контрактовая площадь Лівобережна Лукьяновская Лыбедская Майдан Незалежности Минская Нивки Оболонь Олимпийская Осокорки Палац «Україна» Печерская Пл. Украинских Героев Позняки Политехнический институт Почайна Почтовая площадь Славутич Сырец Теремки Університет Харьковская Чернігівська Шулявская