Продаж 2-х пов. будинку, вул. Цементників

Фото Продаю будинок, 390 кв. м, Цементників вул.  Кривий Ріг, ціна: 125000 $, код 3424
Цементників вул. Кривий Ріг
Довгинцівський р-н Кривий Ріг
125 000 $
5 кімнат
390 м2
2 Поверхів
20 Соток

Продаж 2-х пов. будинок, 275 кв.м. вул. Цементників

Пропонуємо будинок, побудований з екологічно-чистих матеріалів. Рік побудови - 2011р.

Про домовлодіння:
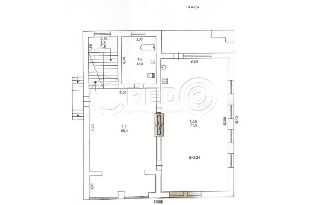
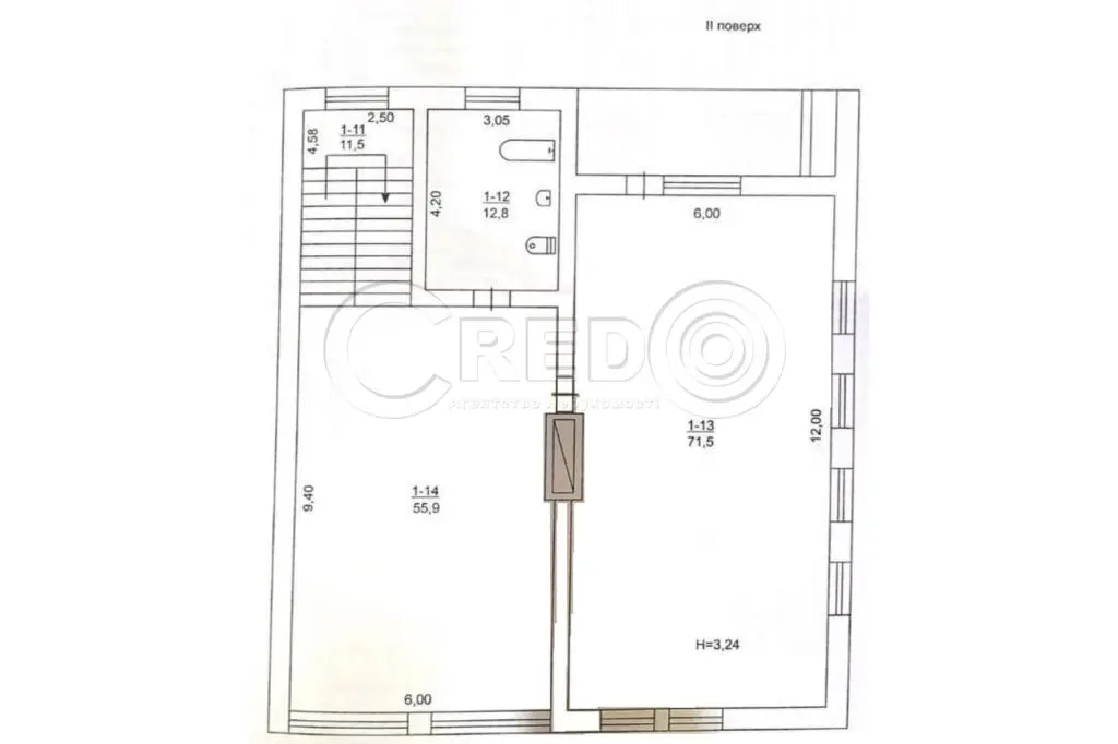
- Загальна площа будинку 390 кв.м.
- Житлова площа - 275 кв.м.
- Земельна ділянка з ландшафтом 10 соток
- Будинок готовий на 70%, без оздоблювальних робіт

Планування будинку:
- Вільне планування
- Виділені зони для відпочинку - басейн, лазня, сауна.
- Високий цоколь, великий підвал.

Комунікації:
- Центральне водопостачання та каналізація
- Наявні умови для підведення електропостачання та газу.

Матеріали побудови:
- При будівлі будинку використовувалися якісні екологічно чисті матеріали:
- Основа - кримський ракушняк, обкладений клінкерною цеглою, утеплений мінеральною ватою "Техноніколь".
- Дах - металочерепиця "IKO", вікна м/пл. "Winter"

Прибудинкова територія:
- Огороджено кам'яним парканом
- Автоматичні ворота
- Альтанка для пікніка

Сад:
- Різновид фруктових дерев

За будь-якими питаннями за цією або схожими пропозиціями звертайтесь за номером телефону, де вам відповість наш ріелтор Надія 098 985 09 08

З повагою, команда Credo!

1 груд. 2025 р.
29 січ. 2026 р. ID: 3424
386

Місцезнаходження