Видова 1к квартира 50м Причал 8 Гліба Бабича 8Б Осокорки!

Фото Selling a 1-room apartment, 50 sq.m., Kanalna Street 8 Kyiv, price: 70000 $, code 3132
Kanalna Street 8 Kyiv
Poznyaky Darnytskyi Kyiv
70 000 $
1 room
50 м2
23 / 24 floor

Видова 1к квартира 50м Причал 8 Гліба Бабича 8Б Осокорки!

 

Дарницький р-он, вул. Гліба Бабича, 8Б ( Канальна )

 

Чудова видова квартира у новому комплексі на лівому березі!

 

ЖК Причал 8 комфорт класу від якісного і надійного забудовника ІнтерГал- Буд.

Будинок здано в експлуатацію, всі комунікації підключені.

 

Будинок 1.

1 кімнатна квартира.

23/24

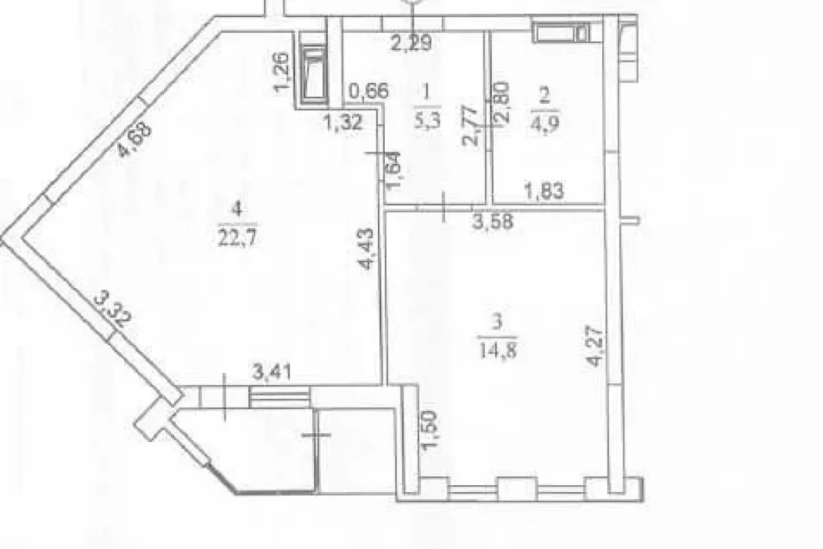
Площа 50 / 14,8 / 22,7 кв.м.

Роздільна, одностороння.

У квартирі кухня, кімната, суміжний с/в, засклена лоджія.

Стан: після будівельників.

Комунікації: всі міські комунікації.

 

Енергозберігаючий будинок.

Ліфти та насоси працюють під час відключень світла

Презентабельна парадна з зоною очікування.

Підземний паркінг. Гостьова парковка.

Закрита територія, дитячий та спорт майданчики.

 

Поруч озеро Корольок, зупинка транспорту, неподалік нові ЖК з всією інфраструктурою, ТРЦ Рівер мол, Аркадія, яхтклуб, зупинка транспорту.

3 км м Осокорки.

 

Розглядається продаж по держпрограмах єОселя, єВідновлення.

 

Чудовий варіант для комфортного проживання чи під орендний бізнес!

Можна придбати комору 2 000 у.е.

Ціна 70 000 у.е. Комісія АН.

Oct 30, 2025
Feb 27, 2026 ID: 3132
521

Location

  1. 8
Also check out properties in other neighborhoods:
Academmistechko Bahrinova hora Bereznyaky Bilychi Borshchahivka Bortnychi Bykivnya Centr Chokolivka Darnytsia Demiivka Feofaniya Holosiiv Karavaievi-Dachi Kharkivskyi-masyv Kurenivka Lisovyi-Masyv Livoberezhnyi-masyv Lukyanivka Lypky Minskyi-Masyv Myshalivka Nova-Zabudova Novobilychi Nyvky Nyzhniy-Pechersk Obolon Oleksandrivska-Slobidka Osokorky Pechersk Podil Poznyaky Priorka Pushcha-Vodytsia Pyrohiv Rusanivka Shulyavka Solomianka Sotsmisto Syrets Teremky Troyeschina Vidradnyi Vita-Lytovska Voskresenka Vynohradar
Sale apartments in Kyiv near a metro stations:
Akademmistechko Beresteiska Boryspilska Chernihivska Darnytsya Demiivska Dorohozhychi Golden-Gate Heroiv-Dnipra Holosiivska Ipodrom Kharkivska Klovska Kontraktova-Square Livoberezhna Lukianivska Lybidska Maidan-Nezalezhnosti Minska Nyvky Obolon Olimpiiska Osokorky Palace-of-Sports Palats-Ukrayina Pecherska Ploshcha-Ukrainskyx-Heroiv Pochayna Politekhnichnyi-Instytut Poshtova-Ploshcha Pozniaky Shuliavska Slavutych Syrets Teremky Universytet Vasylkivska Vokzalna Vydubychi Vyrlytsya Vystavkovyi-Tsentr Zhytomyrska Zvirynecka