2к квартира, 84 кв. м., вул. Мала Житомирська, 7 Без комісії

Фото Selling a 2-room apartment, 84 sq.m., Mala Zhytomyrska Street 7 Kyiv, price: 205000 $, code 3454
Mala Zhytomyrska Street 7 Kyiv
Centr Shevchenkivskyi Kyiv
205 000 $
2 rooms
84 м2
3 / 3 floor
Maidan-Nezalezhnosti — 8 хв

Шевченківський район, вул. Мала Житомирська, 7

Київ, центр, а 2-5 хвилин пішки від Майдану Незалежності, Софійської площі та Володимирської гірки.

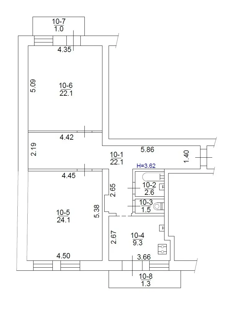
Характеристики квартири:
- Загальна площа: 84 м²
- Поверх: 3 (останній)
- Висота стелі: 3,62 м
- Кімнати: 2 великі, окремі
- Місце під велику комору-гардероб
- Балкони: 2 (на вулицю та у внутрішній двір)
- Санвузол: роздільний
- Велика кладова над ванною кімнатою
- Стан ремонту: потребує оновлення (20+ років)
- Кухня: промислова витяжка, посудомийка, духовка, газова плита
- Кімнати без меблів
- Підлога: дубовий паркет

Переваги та можливості:
- Останній поверх дозволяє у збільшити площу за рахунок горища, облаштувавши мансарду або повноцінний четвертий поверх (мансарда у повний зріст)
- Технічно можливе встановлення індивідуального ліфта у дворі
- Ідеальний варіант для сім’ї, представницьких апартаментів, офісу класу А, арт-простору або інвестиційного проекту

Будинок та інфраструктура:
- Дореволюційна цегляна будівля, зведена у 1910 році. Має власну історію. В різні періоди тут проживали відомі діячі мистецтва та науки
- Повна реконструкція у 1990-х
- Перекриття — залізобетон
- Товсті стіни
- Поруч станція метро Майдан Незалежності, Крещатик, Novus, ТРЦ Глобус, історичний центр, діловий квартал, урядовий квартал.

Комунікації:
- Центральне опалення, водопостачання та каналізація
- Гаряча вода - бойлер
- Опалення є під час відключення світла
- Газова плита
- Зручний під'їзд, можливість парковки

Прямий продаж без комісії.
Документам більше 3х років.
Перегляд за домовленістю.
Торг присутній.

Дублювання оголошення заборонене.
Рієлторам прохання не турбувати.

Dec 4, 2025
Dec 4, 2025 ID: 3454
413

Location

  1. 7
Also check out properties in other neighborhoods:
Academmistechko Bahrinova hora Bereznyaky Bilychi Borshchahivka Bortnychi Bykivnya Centr Chokolivka Darnytsia Demiivka Feofaniya Holosiiv Karavaievi-Dachi Kharkivskyi-masyv Kurenivka Lisovyi-Masyv Livoberezhnyi-masyv Lukyanivka Lypky Minskyi-Masyv Myshalivka Nova-Zabudova Novobilychi Nyvky Nyzhniy-Pechersk Obolon Oleksandrivska-Slobidka Osokorky Pechersk Podil Poznyaky Priorka Pushcha-Vodytsia Pyrohiv Rusanivka Shulyavka Solomianka Sotsmisto Sviatoshyn Syrets Teremky Troyeschina Vidradnyi Vita-Lytovska Voskresenka Vynohradar
Sale apartments in Kyiv near a metro stations:
Akademmistechko Beresteiska Boryspilska Chernihivska Darnytsya Demiivska Dorohozhychi Golden-Gate Heroiv-Dnipra Ipodrom Kharkivska Klovska Kontraktova-Square Livoberezhna Lukianivska Lybidska Maidan-Nezalezhnosti Minska Nyvky Obolon Olimpiiska Osokorky Palace-of-Sports Palats-Ukrayina Pecherska Ploshcha-Ukrainskyx-Heroiv Pochayna Politekhnichnyi-Instytut Poshtova-Ploshcha Pozniaky Shuliavska Slavutych Syrets Teremky Universytet Vasylkivska Vokzalna Vydubychi Vyrlytsya Vystavkovyi-Tsentr Zhytomyrska Zvirynecka