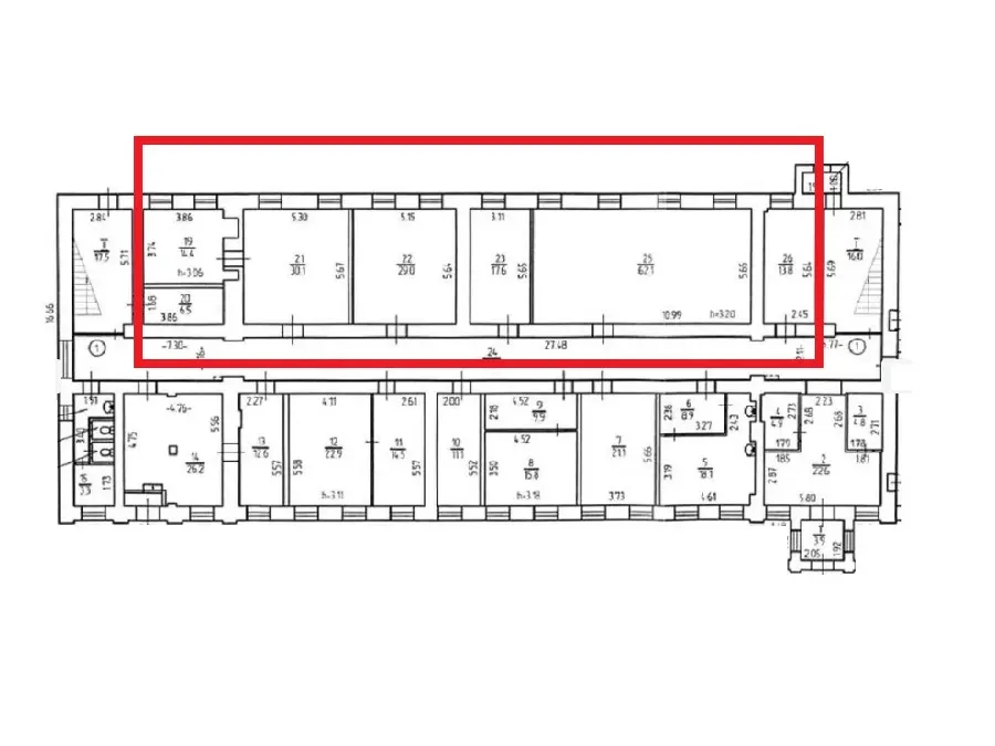
БЕЗ% Оренда офісу 178 м2, вул. Мазепи 10 А, метро Арсенальна,

Фото Орендувати офіс, Івана Мазепи вул. (Січневого Повстання) 10 Київ в довгострокову оренду, ціна: 60520 UAH, код 3081
Івана Мазепи вул. (Січневого Повстання) 10 Київ
Печерськ Печерський р-н Київ
60 520 UAH
178 м2
Арсенальна — 2 хв

БЕЗ% Оренда офісу 178 м2, вул. Мазепи 10 А, метро Арсенальна,

Ідеально підходить для офісу швидкозростаючої компанії, бухгалтерії, юридичних послуг

  • Бізнес-центр, надання юридичної адреси
  • Офіс 178 кв.м, на 1 поверсі, 6 кабінети
  • Офісний ремонт, можливо з меблями
  • Метро Арсенальна, 5 хв пішки.
  • Орендна ставка 340 грн, включаючи експлуатацію.  Здає юр.особа з ПДВ
  • Своя парковка, тиха і охоронювана територія

Ціна  60520 грн.БЕЗ КОМІСІЇ!

Детальна інформація  Тел. 067-445-68-04

‼️P.S. Інші варіанти по Лівому березі на сайті Levobereshka.kiev.ua

 

 

 

27 жовт. 2025 р.
19 січ. 2026 р. ID: 3081
451

Місцезнаходження

  1. 10
Дивіться також нерухомість у інших мікрорайонах:
Академмістечко Березняки Біличі Борщагівка Голосіїв ДВРЗ Деміївка Липки Лівобережний масив Лук’янівка Мишоловка Нивки Нижній Печерськ Нова Забудова Оболонь Олександрівська Слобідка Осокорки Печерськ Поділ Позняки Сирець Солом’янка Троєщина Харківський масив Центр Шулявка
Оренда офісів в Києві біля метро:
Арсенальна Берестейська Бориспільська Вокзальна Голосіївська Дарниця Деміївська Дорогожичі Житомирська Звіринецька Золоті ворота Кловська Контрактова площа Либідська Лівобережна Лук'янівська Майдан Незалежності Мінська Олімпійська Осокорки Палац спорту Палац «Україна» Печерська Пл. Українських Героїв Позняки Почайна Поштова площа Святошин Славутич Тараса Шевченка Університет Харківська Шулявська