Продаж автомайстерні вул.Електрозаводська

Фото Продаю паркінг, гараж, 113.1 кв. м, Електрозаводська вул.  Кривий Ріг, ціна: 20000 $, код 3371
Електрозаводська вул. Кривий Ріг
Покровський р-н Кривий Ріг
20 000 $
113.1 м2

Продаж автомайстерні вул.Електрозаводська
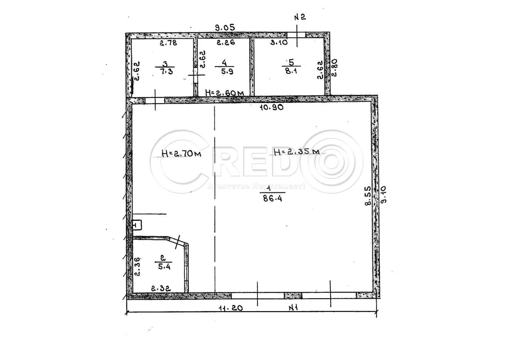
Будівля автомайстерні розташована в гаражному будівельному кооперативі «Зірковий» на Зарічному по вул. Електрозоводська.
Також ідеально підійде під автомийку.

Планування об’єкту:
- Загальна площа 113.1кв.м.
- Висота стелі 2,70м

Комунікації:
- Електроенергія 220V, 5кВт є можливість збільшити
- Центральне водопостачання

Продаж – 20 000$ договірна

За будь-якими питаннями за цією або схожими пропозиціями звертайтесь за номером телефону, де вам відповість наш ріелтор Надія 098 985 09 08.

З повагою, команда CREDO!

26 лист. 2025 р.
26 лист. 2025 р. ID: 3371
250

Місцезнаходження