3х к Лабораторная / Лиманка. Двусторонняя. Лоджия. Программы!

Фото Продаю 3 кімнатну квартиру, 60 кв. м, Центральна вул.  Одеса, ціна: 43000 $, код 3376
Центральна вул. Одеса
Чорноморка Київський р-н Одеса
43 000 $
3 кімнати
60 м2
1 / 5 поверх

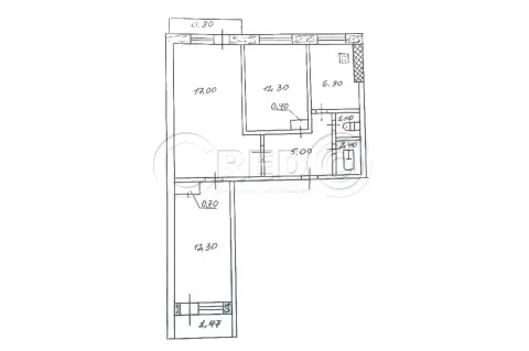
Программы!   3х к Лабораторная/Лиманка. Высокий первый этаж ( цоколь под квартирой жилой) /5 эт. Общая площадь 60 м. 3 раздельные комнаты 18+7,5 + 8 м. Кухня 12 м с выходом на лоджию. Сан узел раздельный ( ванна). Квартира в уверенном жилом состоянии. Можно увеличить площадь. Нотариальная сделка. 

26 лист. 2025 р.
26 лист. 2025 р. ID: 3376
405

Місцезнаходження

Дивіться також нерухомість у інших мікрорайонах:
Аркадія Бугаївка Великий Фонтан Дача Ковалевського Дерибасівка Ланжерон Малий Фонтан Середній Фонтан Слобідка-Воронцовка Таїрова Центр Чорноморка