Довгострокова оренда комерційної нерухомості, Алімпія Галика вул. 75 Київ

Фото Орендувати офіс, Алімпія Галика вул. 75 Київ в довгострокову оренду, ціна: 60000 грн, код 3388
Алімпія Галика вул. 75 Київ
Осокорки Дарницький р-н Київ
60 000 грн
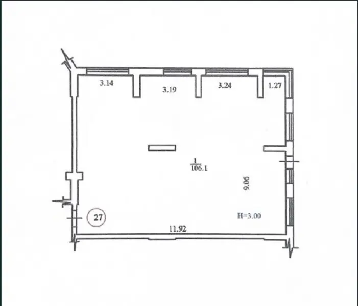
106 м2
Славутич — 5 хв
Здам офісне нежитлове приміщення з дизайнерським ремонтом у Дарницькому районі в ЖК Рів'єра. поблизу метро Славутич. новий бізнес центр CRYSTAL. клас А. за адресою: вулиця Центральна 21. корпус 2. за п'ять хвилин від метро Славутич.Цілодобова охорона. паркінг. представницька вхідна група. Площа офісного приміщення 106.1 кв.м.. 5-й поверх. панорамні вікна. Кухня і санвузол повністю обладнані.З техніки є: електрокотел. бойлер. кондиціонер. холодильник. мікрохвильова піч. Електрика в офісі підготовлена під Ecoflow.Ціна: 60000грн + експлуатаційні послуги
27 лист. 2025 р.
18 трав. 2026 р. ID: 3388
323

Місцезнаходження

  1. 75
Дивіться також нерухомість у інших мікрорайонах:
Академмістечко Багринова гора Березняки Біличі Борщагівка Голосіїв ДВРЗ Деміївка Липки Лівобережний масив Лук’янівка Мишоловка Нивки Нижній Печерськ Нова Забудова Оболонь Олександрівська Слобідка Осокорки Печерськ Поділ Позняки Сирець Солом’янка Соцмісто Троєщина Харківський масив Центр Шулявка
Оренда офісів в Києві біля метро:
Арсенальна Берестейська Вокзальна Дарниця Деміївська Дорогожичі Житомирська Звіринецька Золоті ворота Кловська Контрактова площа Либідська Лівобережна Лук'янівська Майдан Незалежності Мінська Олімпійська Осокорки Палац спорту Палац «Україна» Печерська Пл. Українських Героїв Позняки Політехнічний інститут Почайна Поштова площа Святошин Славутич Тараса Шевченка Університет Харківська Хрещатик Шулявська