Офіс 155 м², Софіївська, Золоті Ворота, Майдан Незалежності, Центр

Фото Орендувати офіс, Софіївська вул. 18 Київ в довгострокову оренду, ціна: 2100 $, код 2909
Софіївська вул. 18 Київ
Центр Шевченківський р-н Київ
2 100 $
260 м2
Майдан Незалежності — 10 хв

БЕЗ КОМІСІЇ ОРЕНДА ОФІСУ В ЦЕНТРІ!

- м. Київ, Шевченківський район, Історичний центр;

- вул. Софіївська 18, 4 поверх, ліфт, житловий фонд;

- площа Софіївська – 1 хв;

- площа Михайлівська – 6 хв;

- метро Майдан Незалежності – 6 хв;

- метро Золоті Ворота – 8 хв;

- вхід через відмінне парадне з двору;

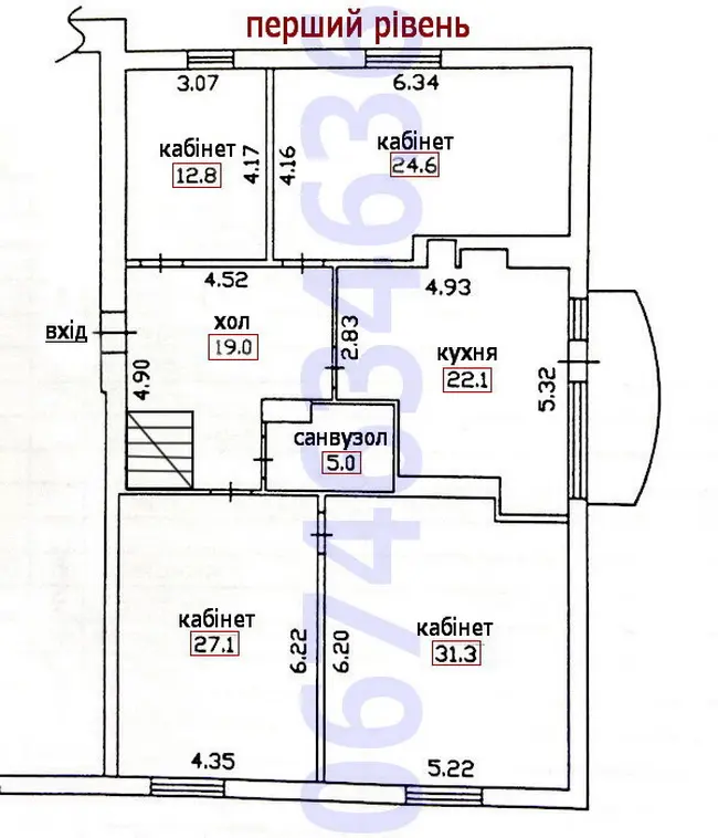
- оренда приміщення, офісу 260 м² у двох рівнях;

- просторі холи, 7 окремих кабінетів, обладнана кухня, 2 санвузли, комора;

- офісний ремонт, кондиціонери, склопакети, сигналізація, автономне опалення;

- паркування у дворі будинку (шлагбаум);

- актуально для різних видів бізнесу або діяльності;

- 2100 у.о./місяць;

- додатково комунальні платежі за тарифами житлового фонду;

+380674634636

Запрошуємо до співпраці власників нерухомості

14 жовт. 2025 р.
13 січ. 2026 р. ID: 2909
345

Місцезнаходження

Дивіться також нерухомість у інших мікрорайонах:
Березняки Біличі Голосіїв ДВРЗ Деміївка Липки Лівобережний масив Лук’янівка Мишоловка Нижній Печерськ Нова Забудова Оболонь Олександрівська Слобідка Осокорки Печерськ Поділ Позняки Сирець Солом’янка Харківський масив Центр Шулявка
Оренда офісів в Києві біля метро:
Арсенальна Берестейська Бориспільська Вокзальна Голосіївська Дарниця Деміївська Дорогожичі Звіринецька Золоті ворота Кловська Контрактова площа Либідська Лівобережна Лук'янівська Майдан Незалежності Мінська Олімпійська Осокорки Палац спорту Палац «Україна» Печерська Пл. Українських Героїв Позняки Почайна Поштова площа Славутич Тараса Шевченка Театральна Університет Харківська Хрещатик Шулявська