Продаж 3 кімнатної квартири 96 кв. м, Юрія Кондратюка вул. 1 Київ

Фото Продаю 3 кімнатну квартиру, 96 кв. м, Юрія Кондратюка вул. 1 Київ, ціна: 91000 $, код 3857
Юрія Кондратюка вул. 1 Київ
Мінський масив Оболонський р-н Київ
91 000 $
3 кімнати
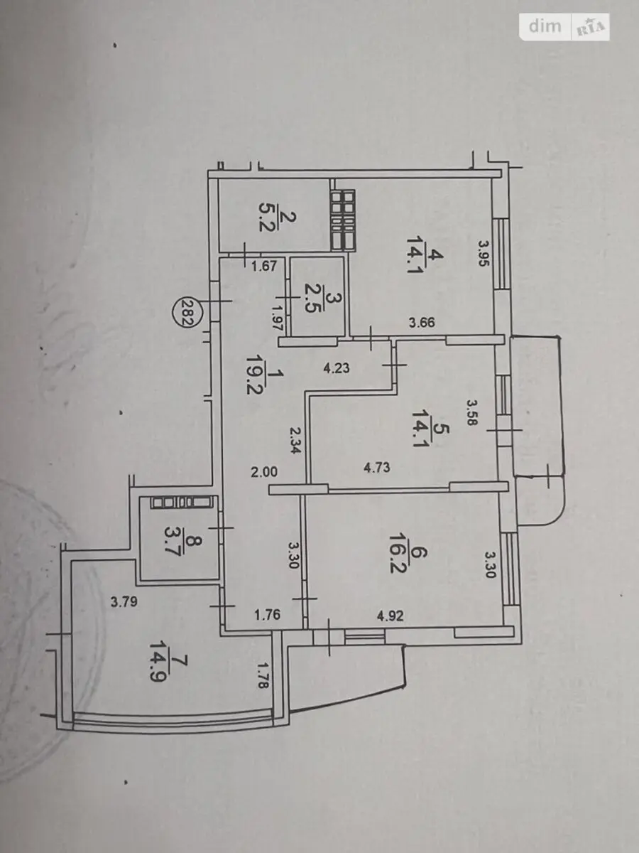
96 м2
15 / 25 поверх
Продам 3 кімнатну квартиру Площа 96/45/28 м, 15/25 поверх В квартирі почали робити ремонт: повністю зроблена електрика та сантехніка, встановлені інсталяції для туалету. Замінені підвіконня. Вода планується в цьому році! Продаж терміновий! Спеціаліст Світлана
25 січ. 2026 р.
25 січ. 2026 р. ID: 3857
29

Місцезнаходження

  1. 1
Дивіться також нерухомість у інших мікрорайонах:
Академмістечко Багринова гора Березняки Биківня Біличі Бортничі Борщагівка Виноградар Відрадний Віта-Литовська Воскресенка Голосіїв Дарниця Деміївка Караваєві Дачі Куренівка Липки Лівобережний масив Лісовий масив Лук’янівка Мишоловка Мінський масив Нивки Нижній Печерськ Нова Забудова Новобіличі Оболонь Олександрівська Слобідка Осокорки Печерськ Пирогів Поділ Позняки Пріорка Пуща-Водиця Русанівка Святошин Сирець Солом’янка Соцмісто Теремки Троєщина Феофанія Харківський масив Центр Чоколівка Шулявка
Продаж квартир в Києві біля метро:
Академмістечко Бориспільська Васильківська Видубичі Вирлиця Виставковий центр Вокзальна Героїв Дніпра Дарниця Деміївська Житомирська Звіринецька Золоті ворота Іподром Кловська Контрактова площа Либідська Лівобережна Лук'янівська Майдан Незалежності Оболонь Олімпійська Осокорки Палац спорту Палац «Україна» Печерська Пл. Українських Героїв Позняки Політехнічний інститут Почайна Поштова площа Сирець Славутич Теремки Університет Харківська Чернігівська Шулявська